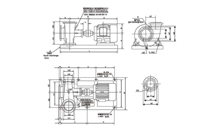
1、SPP型化工混流泵是一种“拉出”式结构泵,在检查和拆卸叶轮和轴封时,毋须将与泵体相连接的管路拆开。
2、装有精密加工的泵轴,装有稀油润滑的轴承,在填料函盖中装有防护轴套。轴承箱的油位,可由恒位油杯来控制。
3、 泵体的支脚,可承受来自管路的任何载荷,并直接传递给基础。这样,转子不会因为泵承受受载荷而产生弯曲,从而保证轴承的使用寿命。由于较大的过流面积,从而减少阻塞。
4、泵的旋转方向,从驱动端看,为顺时针方向。 动力驱动可采用电动机或内燃机。
5、泵装置上可以配备完整的放气装置,有利于吸入管路的排气。
流量:可达7000;
扬程:25m;
转速:2900r/min;
工作压力:可达0.6MPa;
适用温度:-20℃~120℃。


订货须知:
a、安装
1、泵要安装并固定在稳定的基础上,不受其它机械震动的影响。
2、管道尽可能布置成直管,并尽量缩短管道长度,必须转弯处弯头弯曲半径应是管道3-5倍,角度尽可能大于90度。
3、进口管路弯头不应超过2处,总长不宜超过5米。
4、安装泵机时,与泵相连接的管道应进行清理,进出口管道应另设支撑,不得将管路重量支撑于泵上。
5、泵在吸上工况下使用时,泵的出口必须装出口阀门:泵在倒灌工况下使用时,泵的进出口都必须装阀门。泵的进口及出口尽量安装管道补偿器,以便于维修。
b、启动
1、开车前应先盘动外磁联轴节一圈以上,检查有无擦碰情况,运转轻松无阻滞现象方可使用。
2、吸上工况,将泵内灌满须输送的液体:倒灌工况,打开进口阀供给液源。
3、接通电源,检查泵的转向是否正确,将出口阀关闭,即可启动(即关阀启动),然后调节出口阀门,使泵达到所需的流量(压力)。
4、机组试运转3-6分钟,如无异常现象可投入运行。
c、运转
1、要经常检查泵和电机的温升情况,轴套承的温升不应大于40P,承受温度不大于90P,对于B级绝绿电机,环境温度为40纪时的较高温升为90P,允许承受温度为130P。
2、不能以进口阀调节泵流量,以免引起汽蚀。
3、当泵的装置扬程小于泵的额定扬程时,必须关小出口阀门,使流量达到额定值,若出口阀全开,则流量会大于额定值班,在此参数点运行,电机易过载,不安全。
4、在运转过程中,如发现有不正常声音或其它故障时,需立即停机检查,待排除故障后才能继续运转。
d、停机
1、停机时,先关闭出口阀门,然后再切断电源。
2、关闭进口阀门。
3、保持泵机外部及环境的清洁,用水冲洗时,应防止电机受潮,冲洗后应用布擦净泵机上的水迹。
4、泵如在室外,应采取防雨措施,以防电机受潮后烧毁。
5.停机后如环境温度低于输送介质凝固温度时,要放净泵内的液体,以防冻裂。
6、长期停机不用时,应切断电源,清洗泵内流道,用清水冲洗干净,尤其是密封部件要认真对待冲洗井将泵的进出口封闭好,妥善保管。
Copyright © 2021-2021 江苏成人91看片软件泵业制造有限公司 版权所有 备案号:苏ICP备16330991号